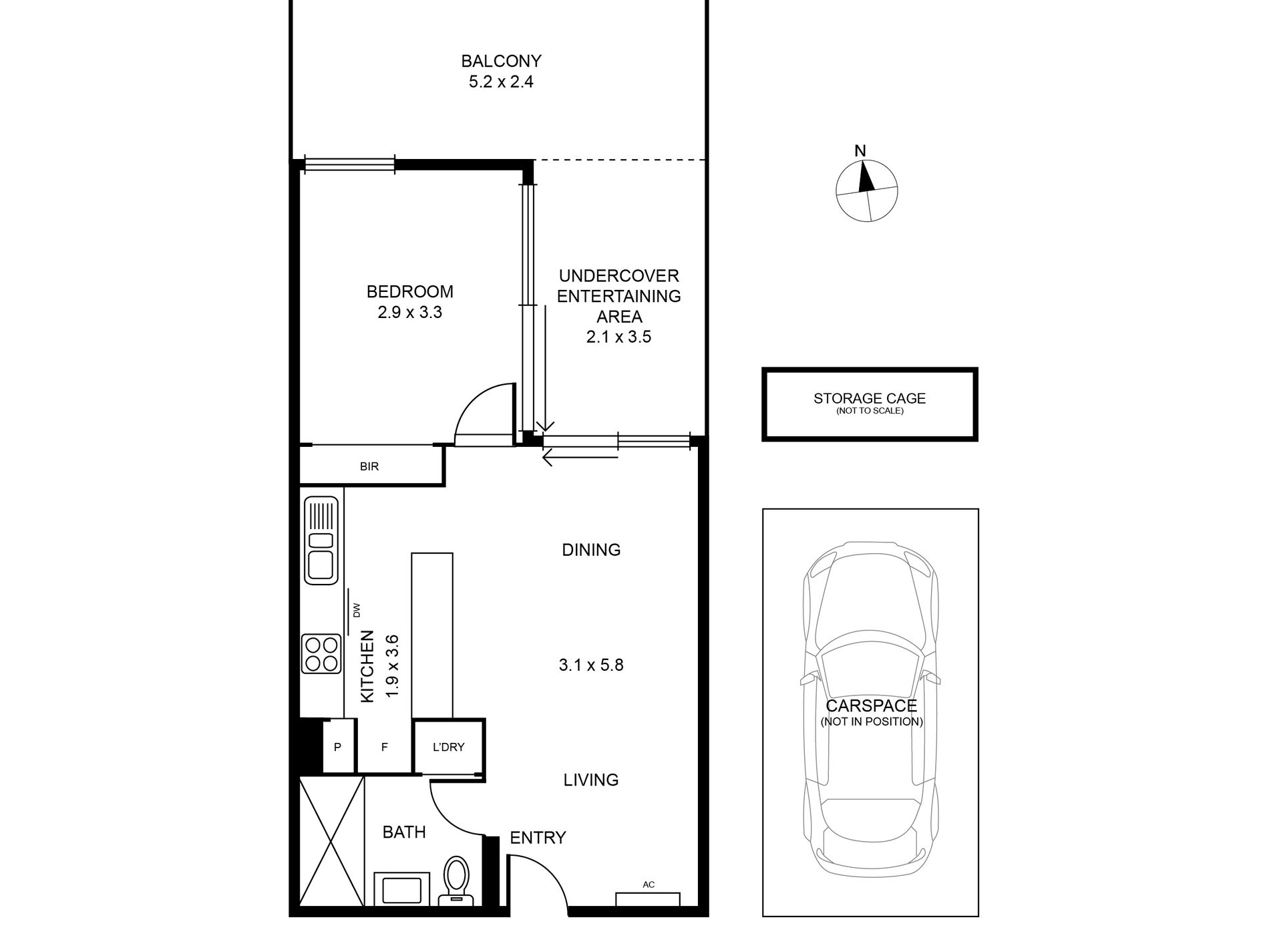
***TO BOOK A TIME TO INSPECT, SIMPLY CLICK ON BOOK AN INSPECTION TIME OR EMAIL AGENT TO BE NOTIFIED OF INSPECTION TIMES. BY REGISTERING, YOU WILL BE INSTANTLY INFORMED OF ANY UPDATES, CHANGES OR CANCELLATIONS FOR YOUR APPOINTMENT. IF YOU DO NOT REGISTER FOR AN OPEN FOR INSPECTION, ACCESS MAY NOT BE PROVIDED*** This stylish one-bedroom apartment is ideally located on the ground floor, overlooking the serene banks of the Yarra River, and is sure to impress from the moment you step inside. - Intercom entry. - Spacious open plan living and dining area. - Sleek galley style kitchen with ample storage, generous bench space, and stainless-steel appliances including a dishwasher. - Terrace balcony with river views perfect for alfresco dining and entertaining. - Light filled bedroom with built in wardrobe. - Central bathroom with walk in shower and laundry facilities. - Split system heating and cooling. - Basement car space for one vehicle.
Features
- Split-System Heating









